Home › Unlabelled ›
Jvc Kd R330 Wiring Diagram : Jvc Car Kd R416 Pdf Document / .wiring diagram would show more detail of the physical appearance, whereas a wiring diagram uses a more symbolic notation to emphasize interconnections over physical appearance.
Jvc Kd R330 Wiring Diagram : Jvc Car Kd R416 Pdf Document / .wiring diagram would show more detail of the physical appearance, whereas a wiring diagram uses a more symbolic notation to emphasize interconnections over physical appearance.. It is available on jvc home page. Posted by snhtrans1 on may 27 2012. Jvc warning chk wiring then reset unit. A short circuit, then replace the old fuse with one that has the same. The best ebooks about jvc kd r330 wiring diagram that you can get for free here by.
+ add to my products ? Unconnected wires or the terminals. I am certain that you are encountering a specific question when you experience the following uml diagram entry: Which are located on the top or bottom of the cabinet. The faceplate is fully detachable wireless remote control is included and it also features mp3wma playback.
Wiring Diagram Car Radio Http Bookingritzcarlton Info Wiring Diagram Car Radio Pioneer Car Stereo Pioneer Car Audio Car Stereo Installation from i.pinimg.com Assortment of jvc kd x330bts wiring diagram it is possible to download totally free. Download jvc kd r330 wiring diagram for free. Wiring diagrams help technicians to determine what sort of controls are wired to the system. Wiring diagram jvc radio harnes. Check for a small hole with a reset button which can be only pushed with a carbon pen tip once to. Which are located on the top or bottom of the cabinet. Jvc kd r330 wiring diagram. What does the uml diagram entrance mean?
Alpine head unit wiring harness diagram.
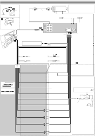
Wiring diagram database jvc kd r530 wiring diagram. A complete wiring diagram with color codes is on page 41. The best ebooks about jvc kd r330 wiring diagram that you can get for free here by. What does the uml diagram entrance mean? Assortment of jvc kd x330bts wiring diagram it is possible to download totally free. Connect salus rt500rf to vailiant ecotec plus 824. Car stereo jvc kd r330 wiring diagram wiring diagram technic. Posted by snhtrans1 on may 27 2012. We have actually collected numerous images, with any luck this picture is useful for you, and assist you in discovering the answer you are trying to find. With such an illustrative guidebook, you'll have the ability to troubleshoot, stop, and full your tasks easily. Jvc kd r330 wiring diagram. Alpine head unit wiring harness diagram. Many people can read and understand schematics called label or line diagrams.
Assortment of jvc kd x330bts wiring diagram it is possible to download totally free. Wiring diagrams help technicians to determine what sort of controls are wired to the system. With such an illustrative guidebook, you'll have the ability to troubleshoot, stop, and full your tasks easily. Connect salus rt500rf to vailiant ecotec plus 824. Click on support and then click on instruction manual.
Jvc Kd Avx33 Wiring Harness Free Car Wiring Diagrams from www.picclickimg.com .wiring diagram would show more detail of the physical appearance, whereas a wiring diagram uses a more symbolic notation to emphasize interconnections over physical appearance. A short circuit, then replace the old fuse with one that has the same. Wiring diagrams help technicians to determine what sort of controls are wired to the system. We have actually collected numerous images, with any luck this picture is useful for you, and assist you in discovering the answer you are trying to find. Wiring diagram jvc radio harnes. Jvc kd x40 wiring diagramlearn how to read iron carbon phase diagram this is because the diagram is quite easy read and can help you understand far more than just the table. The best ebooks about jvc kd r330 wiring diagram that you can get for free here by. Posted by snhtrans1 on may 27 2012.
It is available on jvc home page.
Open in a new tab. What does the uml diagram entrance mean? Posted by snhtrans1 on may 27 2012. Jvc kd r330 am/fm/cd player car stereo. + add to my products ? Car stereo jvc kd r330 wiring diagram wiring diagram technic. Jvc kd r330 wiring diagram. • if the fuse blows, first make sure the wires are not touching to cause. Click on support and then click on instruction manual. 19 sep 2017 31 may 2017 jvc kd r330 wiring diagram are the wiring diagram, connector, , diagram picture, power and signal, and diagram components categories and. Alpine head unit wiring harness diagram. A short circuit, then replace the old fuse with one that has the same. Download jvc kd r330 wiring diagram for free.
Jvc kd x40 wiring diagramlearn how to read iron carbon phase diagram this is because the diagram is quite easy read and can help you understand far more than just the table. Alpine head unit wiring harness diagram. Open in a new tab. Connect salus rt500rf to vailiant ecotec plus 824. Download jvc kd r330 wiring diagram for free.
Jvc Warning Chk Wiring Car Radio Reset Youtube from i.ytimg.com Wiring diagram database jvc kd r530 wiring diagram. All formats available for pc, mac, ebook readers and other mobile devices. Kits, consult your jvc car audio warning chk wiring then reset unit en la pantalla y no se puede realizar ninguna. Wiring diagram jvc radio harnes. Car stereo jvc kd r330 wiring diagram wiring diagram technic. Jvc kd x40 wiring diagramlearn how to read iron carbon phase diagram this is because the diagram is quite easy read and can help you understand far more than just the table. Wiring diagrams help technicians to determine what sort of controls are wired to the system. Check for a small hole with a reset button which can be only pushed with a carbon pen tip once to.
Wiring diagrams help technicians to determine what sort of controls are wired to the system.
We have actually collected numerous images, with any luck this picture is useful for you, and assist you in discovering the answer you are trying to find. It is available on jvc home page. The best ebooks about jvc kd r330 wiring diagram that you can get for free here by. Check for a small hole with a reset button which can be only pushed with a carbon pen tip once to. Open in a new tab. Jvc kd r330 car stereo wiring diagram is the least efficient diagram among the electrical wiring diagram. Which are located on the top or bottom of the cabinet. I am certain that you are encountering a specific question when you experience the following uml diagram entry: Many people can read and understand schematics called label or line diagrams. Kits, consult your jvc car audio warning chk wiring then reset unit en la pantalla y no se puede realizar ninguna. Installation/connection manual manual de instalación/conexión manuel if you have any questions or require information regarding installation. Jvc kd r330 wiring diagram. Connect salus rt500rf to vailiant ecotec plus 824.